 
         
                Maison 4 pièce(s) 3 chambre(s) 106 m²
Étaples (62630)A propos de ce bien
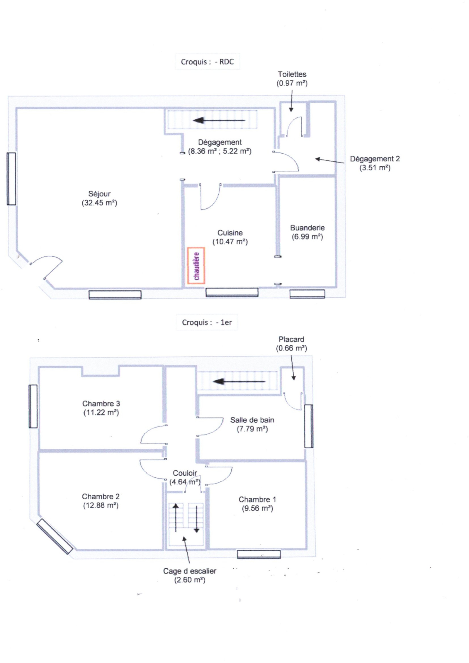
Maison à rénover avec locataire en place proche du port et des commerces comprenant au RDC : un séjour/salon de 32 m2, une cuisine indépendante, une buanderie, un wc.
A l'étage : trois chambres, une salle d ebain.
Un grenier, une cour avec accès exterieur.
Caractéristiques de ce bien
- Surface 106 m²
- séjour 32 m²
- 3 chambre(s)
- 1 salle(s) de bain
- Chauffage individuel : chaudière (gaz de ville)
- 1 niveau(x)
Diagnostics énergétiques
Montant estimé des dépenses annuelles d'énergie de ce logement pour un usage standard est compris entre 1 773 € et 2 399 € . 2021 étant l'année de référence des prix de l'énergie utilisés pour établir cette estimation.
 
             
                                 
                                 
                                 
                                 
                                 
                                 
                                